Property Detail

14218 SW 272nd St

Homestead FL 33032

$365,000

Status: Active

Property Details

Description

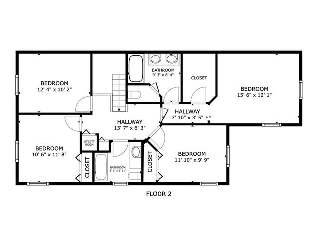
PRICE DROP! Discover comfort and convenience in this spacious 3-bedroom, 2.5-bathroom townhouse nestled in the desirable Mandarin Lakes community. Built in 2007, this two-story residence boasts 1,850 square feet of living space, including a finished 260-square-foot garage and covered front porch, offering the perfect blend of style and functionality. Step inside and enjoy a bright and open floor plan with generous living and dining areas—ideal for entertaining or simply relaxing. The home features a thoughtfully designed layout, with all bedrooms located upstairs for privacy, and a half bath conveniently situated on the main level for guests. The primary suite includes ample closet space and an ensuite bathroom.

Map Location

Listing provided courtesy of of United Realty Group Inc. Last updated 2025-12-15 15:16:20.000000. Listing information © 2025 .

Inquire Now
Roya1234 Real estate 9:00 AM - 5:00 PM 9:00 AM - 5:00 PM 9:00 AM - 5:00 PM 9:00 AM - 5:00 PM 9:00 AM - 6:00 PM 9:00 AM - 5:00 PM 9:00 AM - 5:00 PM https://static.royacdn.com/Site-1eb789a8-a8f0-4932-879a-d939c5979c17/grouppic.jpg