Property Detail

5672 SW 2nd St

Plantation FL 33317

$565,000

Status: Active

Property Details

Description

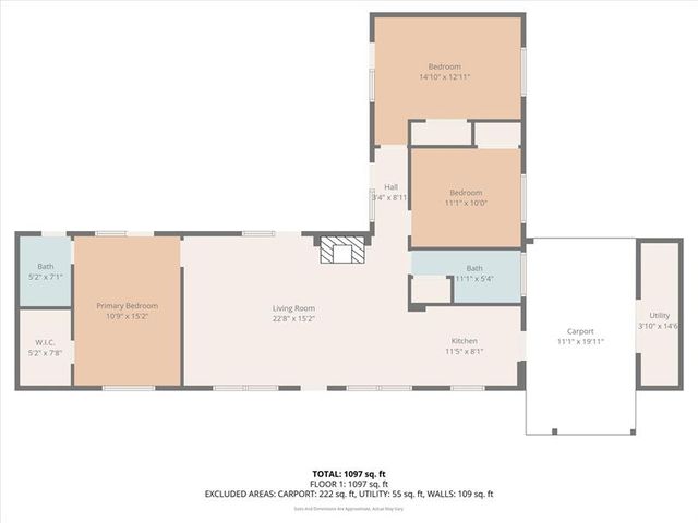
Welcome to this 3-bedroom, 2-bathroom pool home in the heart of Plantation! The Primary bedroom has a fully remolded bathroom and a walk-in closet. This inviting residence features spacious living areas, a cozy brick fireplace, and a relaxing screened-in pool with a hot tub—perfect for enjoying the Florida lifestyle year-round. The extra-large driveway and carport provide ample parking, and there is additional room for a large boat or RV behind the double gate. Nestled in a tranquil, established neighborhood with no HOA, this property offers both comfort and convenience. Ideally located near top restaurants, shopping, and entertainment, with easy access to Fort Lauderdale Airport, major highways, beautiful beaches, Broward Mall, and Sawgrass Mills Mall.

Map Location

Listing provided courtesy of of Blue Realty Team, LLC. Last updated 2025-11-03 15:16:39.000000. Listing information © 2025 .

Inquire Now
Roya1234 Real estate 9:00 AM - 5:00 PM 9:00 AM - 5:00 PM 9:00 AM - 5:00 PM 9:00 AM - 5:00 PM 9:00 AM - 6:00 PM 9:00 AM - 5:00 PM 9:00 AM - 5:00 PM https://static.royacdn.com/Site-1eb789a8-a8f0-4932-879a-d939c5979c17/grouppic.jpg