Property Detail

1225 NE 4th St

Fort Lauderdale FL 33301

$2,895,000

Status: Active

Property Details

Description

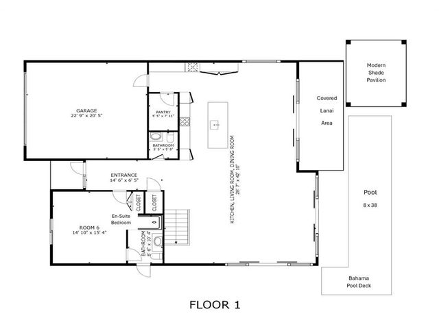
A refined Contemporary Florida Modern residence in the heart of Victoria Park. Defined by clean architectural lines, expansive impact glazing, and seamless indoor–outdoor living, this finished 2023 luxury home offers a calm, sophisticated lifestyle. Floor-to-ceiling glass fills the open living spaces with natural light, complemented by a designer kitchen featuring some top-of-the-line Gaggenau appliances, custom cabinetry, and an oversized quartz island. Outdoors, enjoy a resort-style linear lap pool, covered lanai, and modern shade pavilion in a private setting. Three En-suite bedrooms and a amazing private "Primary" bedroom retreat. Located just minutes from the Flagler Village, Las Olas Boulevard, downtown Fort Lauderdale, the Atlantic Ocean, Fine Dining and the international airport.

Map Location

Listing provided courtesy of of Premier Associates Realty LLC. Last updated 2026-03-10 14:16:29.000000. Listing information © 2026 .

Inquire Now
Roya1234 Real estate 9:00 AM - 5:00 PM 9:00 AM - 5:00 PM 9:00 AM - 5:00 PM 9:00 AM - 5:00 PM 9:00 AM - 6:00 PM 9:00 AM - 5:00 PM 9:00 AM - 5:00 PM https://static.royacdn.com/Site-1eb789a8-a8f0-4932-879a-d939c5979c17/grouppic.jpg